
Jedinečný 4-izbový rodinný dom v Senci. Vysoký strop v obývacej miestnosti, predpríprava na krb a obrovské presklenie poskytujú maximum prirodzeného svetla.
Jedinečný 4-izbový rodinný dom na predaj, Senec

Ulica: | Zelená |
---|---|
Obec: | Rovinka |
Okres: | Senec |
Kraj: | Bratislavský kraj |
Druh: | Domy |
Typ: | Predaj |
Typ domu: | Rodinný dom |
Realitná kancelária NestGroup ponúka na predaj rodinný dom, ktorý je súčasťou dvojdomu. RD sa nachádza na Zelenej ulici v pokojnej časti Rovinky. Zároveň je táto ulica slepou, to znamená, že prináša maximálny komfort bývania. Nehnuteľnosť je vynikajúcou investíciou pre mladé rodiny a taktiež ideálna na prenájom.
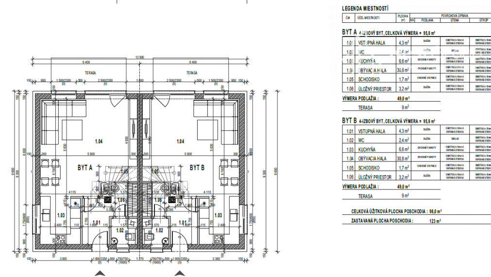
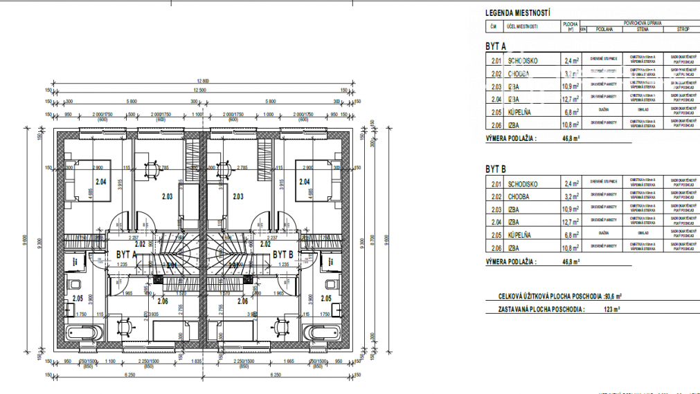
Úžitková plocha: 95,8 m2 : prízemie – 49 m2, 1.NP – 46,8 m2. Zastavaná plocha: 61,5 m2
K domu prislúcha aj pozemok s rozlohou 257,5 m2.
Dispozícia:
Hlavný vstup je situovaný od ulice. Tvorí ho vstupná hala, schodisko, WC, kuchyňa s obývacou izbou, úložný priestor, výstup na terasu.
Na 1.NP sa vchádza schodiskom do chodby. 3 samostatné izby, kúpeľňa.
VYBAVENIE
- RD ponúka priestor s komfortnou dispozíciou. Dom sa predáva v stave holodom.
- tehla Heluz 300 mm
- EPS zateplenie 150 mm
- teplovodné podlahové kúrenie
- bezpečnostné vchodové dvere
- plastové okná - 3sklo - 6-komorové zvnútra biele, zvonku antracit
- Predpríprava na krb, klimatizáciu, alarm, exteriérové žalúzie, fotovoltaiku.
Dom je možné dokončiť do štandardu, ktorý si sami zvolíte.
Parkovanie
Nehnuteľnosť ponúka 2 vonkajšie parkovacie státia priamo pred vstupom do domu + 1 spoločné určené pre návštevy
Lokalita:
Rodinný dom sa nachádza v modernej a neustále sa rozvíjajúcej obci Rovinka, ktorá poskytuje kompletnú občiansku vybavenosť - ZŠ, MŠ, pošta, reštaurácie, potraviny. Okolie prináša krásnu prírodu, štrkové jazerá sa využívajú hlavne v letných mesiacoch. Športovci si prídu na svoje na obľúbených cyklotrasách. Výborné napojenie na diaľnicu. Šamorín vzdialený iba 10 km prináša vynikajúce možnosti na všetky športové aktivity.
Cena:
Cena nehnuteľnosti je 279.900,-EUR vrátane provízie a kompletného odborného a právneho servisu
V prípade záujmu kontaktujte makléra:
PaedDr. Eva Gajdošová
0907 816 704
eva.gajdosova@nestgroup.sk
Realitný maklér